
Viale Tiziano quartiere Flaminio
adiacenze Ponte Milvio. Appartamento in vendita di Superfice complessiva 180 mq oltre ampio box in garage. Elegante complesso residenziale anni’ 50 con giardino condominiale esclusivo sui tre lati del perimetro, accessori comuni aree verdi e tennis.

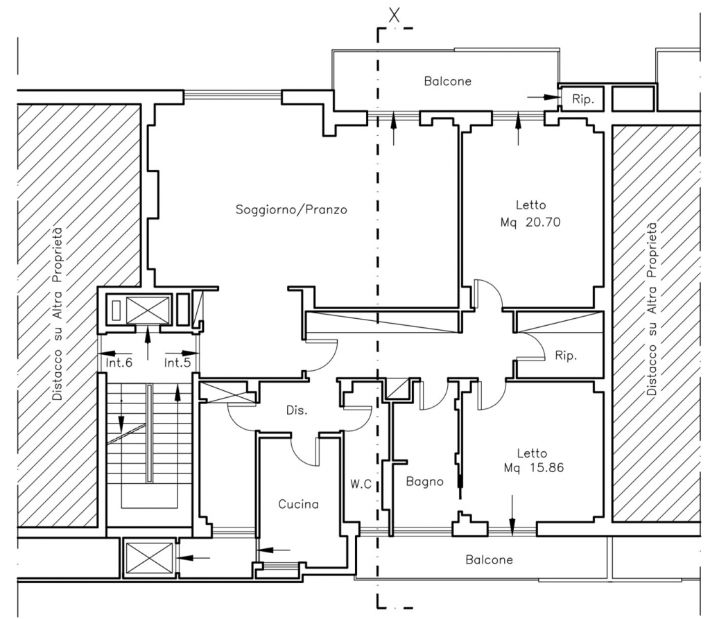
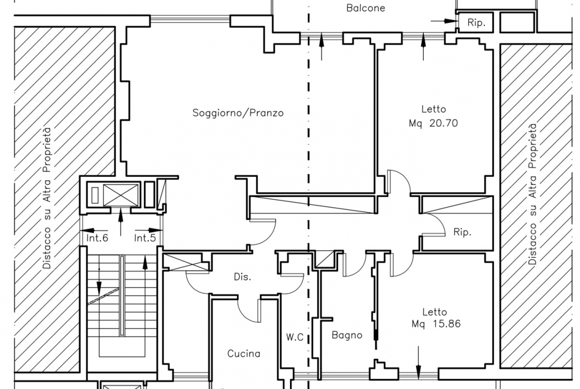
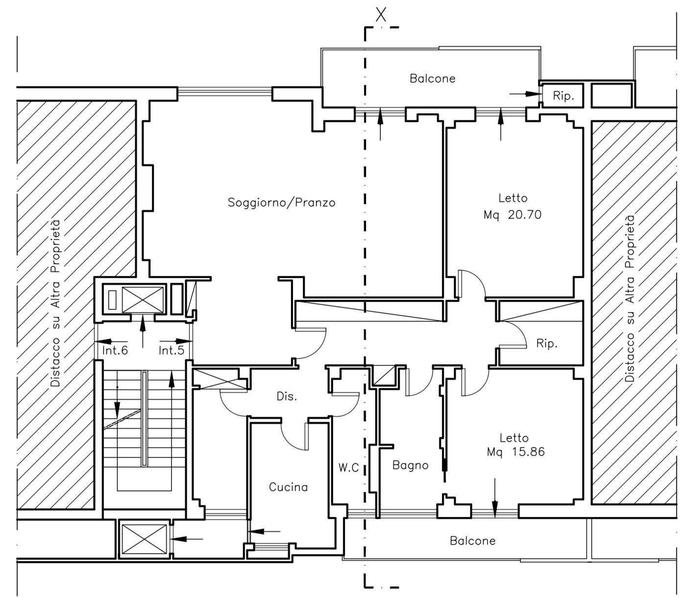
Distribuzone
PIANO 3 mq 180 con TERRAZZO
2 balconi, BOX AUTO, cantina
AFFACCI CON PROSPETTI su SPAZI VERDI. COMPRENSORIO con CAMPO DA TENNIS, PARCO GIOCHI ED AREE RELAX, ascensore diretto in casa, 2 ingressi, ampio salone con CAMINO, 2 camere, cameretta, cucina abitabile, doppi servizi.
Attualmente la casa risulta cosi distribuita: un ampio ingresso principale accede sia al salone che al corridoio verso la zona notte. L’ampia area living di circa 40 mq prospetta verso ponte Milvio e sull’area verde condominiale, con ampia finestra e Porta finestra su balcone. La zona Notte risulta invece composta da due camere regolari e contrapposte, una verso l’area condominiale e l’altra verso il lato di via Rutelli, doppi servizi, disimpegni e ampia cucina abitabile. Nell’ambito della progettazione di una nuova distribuzione degli ambienti e’ possibile ipotizzare diverse declinazioni di intervento, consultabili a richiesta a seconda delle esigenze. Il progetto preliminare viene fornito come servizio a valore aggiunto incluso nel costo di agenzia. Lavori rifacimento facciata e parti interne già deliberati attraverso procedura 110 percento. Disponibile progetto di nuova distribuzione delgi ambienti . Consultateci per maggiori informazioni.

Progetto di nuova distribuzione ambienti
In questa variante progettuale si e’ ipotizzato spostare la zona cucina all’interno dell’area living in continuità con la’rea esterna a balcone, definiendo una netta divisione dall’area notte in cui si attestano 3 camere, 3 servizi e 2 walking closet.
L’area Flaminio – Parco della Musica
Il linguaggio architettonico dell’edificio, risulta omogeneo a quello del tessuto urbano circostante dell’area Flaminio, che nel suo complesso viene valutata come fortemente vocata ad assumere un incremento del valore dei segmenti residenziali, essendo zona urbanistica compresa all’interno di una serie di progetti di riqualificazione generale previsti dal piano regolatore, come l’ampliamento del Maxxi, l’auditorium parco della Musica e la città della scienza a via Guido Reni, oltre ai numerosi progetti previsti per la riqualificazione degli ambiti di Via delle XVII Olimpiade e Piazza Mancini.

La vocazione di Polo culturale assegnata al quartiere Flaminio è certamente uno degli asset importanti dell’area che si trova strategicamente posta a 10\12 minuti dal centro storico – piazza del Popolo, attraverso l’asse della pista ciclabile di Viale Tiziano e via Flaminia.