Esempio di ristrutturazione di unità residenziale a Roma Flaminio

Esempio di ristrutturazione di unità residenziale a Roma Flaminio

Ristrutturazione d’appartamento con ridefinizione degli spazi
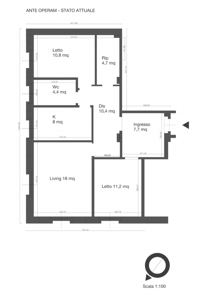
L’unità di base prevede un ampio ingresso, soggiorno, cucina, 2 camere, servizio e disimpegno. L’intervento di ridistribuzione degli ambienti viene sviluppato per ottimizzare la luminosità delle complessive 6 finestre cercando al contempo di definire una serie di opzioni adattabili a diverse esigenze di tipo residenziale o ricettivo tenendo in conto diverse tipologie di istanze.

Un intervento di ristrutturazione più incisivo e di efficentamento energetico e’ stato prefigurato dal nostro studio di progettazione & architettura ed e’ stato messo a disposizione dell’acquirente nell’ottica di mostrare le potenzialità planimetriche.

Nelle versioni presentate a seguire, si e’ ipotizzato un miglioramento degli spazi, ottenendo una nuova distribuzione degli ambienti :  Ingresso soggiorno con cucina a vista, 3 camere doppie, doppi servizi e una comoda cabina armadio closet. Nelle immagini allegate, presentiamo una nuova distribuzione, partendo dallo stato attuale attraverso una serie di ipotesi progettuali tese a migliorare la vivibilità, rispondendo a criteri e requisiti dell’abitare contemporaneo.

Variante B

questa Variante comprende un ingresso ed una zona studio laterale semiaperta verso l’ambiente living, un soggiorno diviso in zona living e zona pranzo con cucina, 3 camere da letto doppie e doppi servizi completi posti in continuità.

Variante C

In questa ipotesi progettuale, la distribuzione prevede un ingresso, un ampio soggiornoo con zona living e zona pranzo con cucina, 3 camere doppie di cui 1 con bagno e cabina armadio closet ed altre due camere con un bagno comune completo, posto in aderenza all’ingresso. In questa soluzione e’ necessario predisporre un impianto sanitrit per poter raggiungiere la colonna di scarico.

Variante D

In questa ipotesi progettuale, la distribuzione prevede un ingresso a cui segue una decompressione con ampia zona soggiorno con cucina a vista e adiacente zona living, 2 camere doppie e doppi servizi concentrati sul blocco cieco della casa, uno spazio studio o cabina armadio closet, posto in aderenza all’ingresso.
Questa soluzione puo’ tener conto di una struttura vetrata che separa la cucina dalla zona pranzo.

Variante E

In questa variante progettuale, la distribuzione prevede un ingresso a cui segue una ampia zona soggiorno con cucina a vista eventualmente separabile creando un filtro opaco, adiacente zona living, 2 camere doppie e doppi servizi ricavati dall’originario bagno, realizzandone uno con finestra ed uno cieco; due cabina armadio closet si attestano alle due camere da letto ed una lavanderia viene realizzata di fronte al blocco servizi.

Variante F

In questa variante progettuale, la distribuzione prevede un ingresso a cui segue una ampia zona pranzo con cucina a vista eventualmente filtrata attraverso una schermatura, zona living, 2 camere doppie e doppi servizi ricavati dall’originario bagno e dal rispostiglio in parte assorbito dal secondo servizio ed in parte utilizzato come closet che si attesta alla camera da letto. Anche la seconda camera da letto prevede una zona armadio-closert ricavata da parte dell’ingresso.

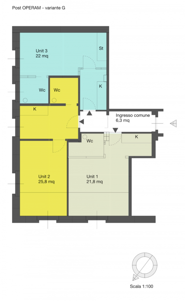
Variante G

Ulteriore soluzione che prevede un frazionamento interno in 3 unità indipendenti funzionali ad un affitto di tipo ricettivo-turistico. Ciascuna unià comprende un area living cucina, un servizio ed una camera letto.

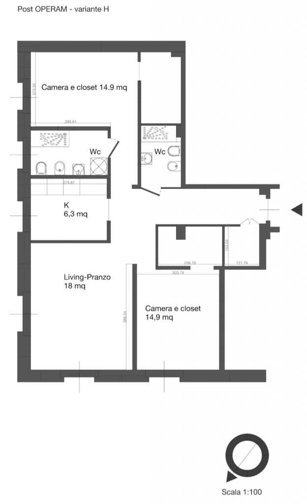
Variante H

questa variante, rispetto alla F, prevede la separazione del vano cucina dal soggiorno attraverso delle pareti opache o trasparenti tale da permettere una maggiore o minore permeabilità visiva.

Progetti di interni dell’Arch. Alesssandro Mori

Partecipa alla discussione

Compare listings

Confrontare